Voorzijde met uitbreiding in passende uitstraling
De ambulancepost is oorspronkelijk opgeleverd in 2003. Ons bureau heeft in een aantal fasen de uitbreiding van de post begeleid. In de eerste fase is het aantal standplaatsen vergroot van 8 naar 14 stuks inclusief 2 overdekte wasplaatsen. Na een studie die begon met het realiseren van een losstaande uitbreiding, is er gekozen voor uitbreiding van het bestaande gebouw. Het karakteristieke schuine aflopende dak van de post is verlengd, zodat de nieuwe stallingsplaatsen binnen de uitstraling van het huidige gebouw zijn toegevoegd.
Stallingsgarage met insteekverdieping en interne verbinding
De tweede fase behelst een interne verhuizing. De sociale ruimte is verhuisd naar een nieuwe insteekverdieping in de garage, inclusief nieuw trappenhuis dat een snelle uitruk mogelijk blijft maken. De ruimte die beneden vrijkomt, wordt ingedeeld met uitbreiding van was- en kleedruimten. Het stijgende aantal personeelsleden blijft op deze manier goed gehuisvest in het gebouw.
Sociale ruimte met op de achtergrond besloten werkplekken
Sociale ruimte met op de achtergrond besloten werkplekken
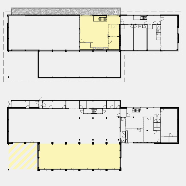
Plattegronden met in geel de uitbreidingen
Plattegronden met in geel de uitbreidingen
De bouwwerkzaamheden zijn begeleid door ons bureau. De planning ervan was een ingewikkelde puzzel, want tijdens de bouwwerkzaamheden moest de “winkel open blijven”. 

De ambulancepost is nu weer klaar voor de toekomst.
Samenwerkende partijen:
# Opdrachtgever; Veiligheidsregio Noord-Holland Noord, # Constructeur; Bouwadvies WFO B.V., # Installatie-advies; Innax B.V., Aannemer; Aannemingsbedrijf Wit Wognum B.V. / Hecon bedenken bouwen beheren.
Back to Top